Description
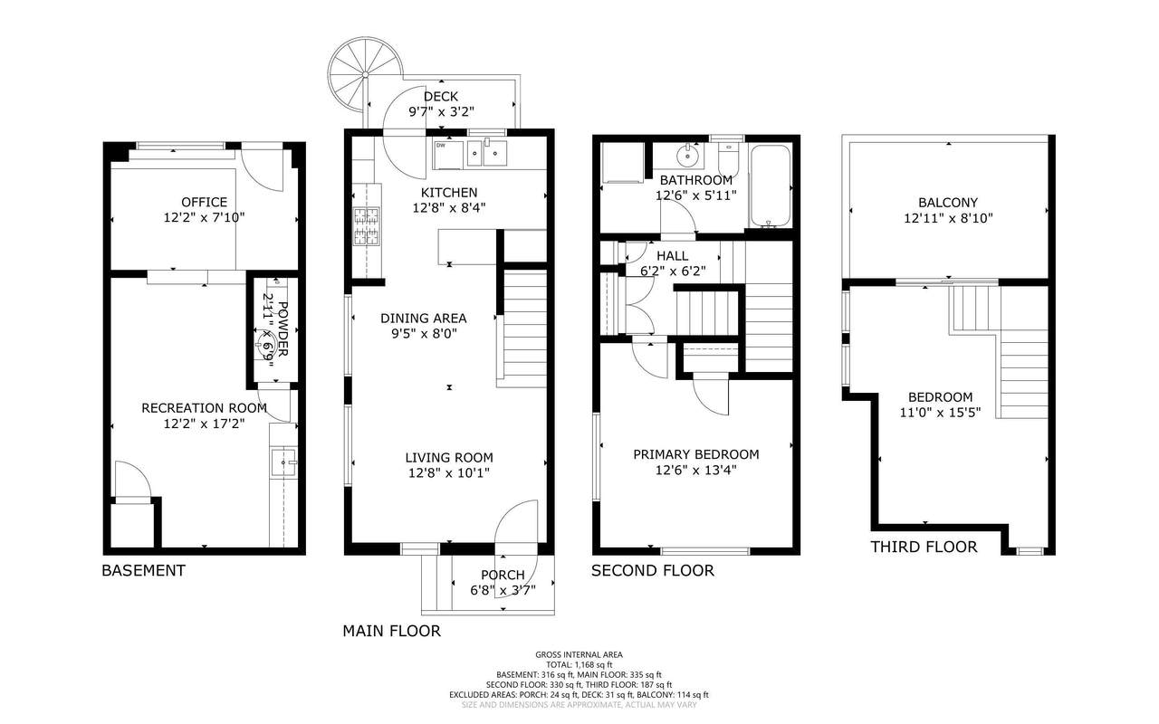
Tucked away in Provincetown's desirable West End, 3 Meadow Road, Unit 2 offers far more than meets the eye. This meticulously maintained one-bedroom townhome is full of unexpected space, smart design, and thoughtful finishes -- all set across four levels of comfortable and flexible living. In addition to the king-sized primary bedroom, this home includes a den, and a lower-level studio with its own private entrance -- perfect for a home office, gym, or creative retreat. The property also boasts three inviting outdoor areas, including a morning terrace off the kitchen, a private enclosed patio, and a spacious top-floor deck with bucolic views of nearby conservation land and a horse stable. The main living level features an open-concept layout with 9-foot, beamed ceilings and sun-drenched interiors. The living and dining areas flow seamlessly into a well-appointed kitchen with a breakfast bar, stone countertops, abundant cabinetry, and stainless-steel appliances. Upstairs, the generous primary suite includes a full bath with a whirlpool tub and an in-unit laundry. One floor above, the cozy den offers space for guests or a quiet reading nook, and access to the large rooftop deck -- the perfect spot to relax or entertain with a view. The lower level studio, accessed via a private patio stairway, features soaring ceilings and a half bath ideal for work, fitness, or art. Other highlights include: gleaming wood floors, central air conditioning, two-car tandem parking, professionally managed association, close proximity to Victor's restaurant, the beach, and town center. This is a rare opportunity to own a townhome that balances privacy, versatility, and a prime West End location. Rentals are welcome for a minimum of 90 days. We look forward to welcoming you to 3 Meadow Road, Unit 2. Seller welcomes offers with requests for buyer concessions.
-
1BEDS
-
5.17ACRES
-
1BATHS
-
11/2 BATHS
-
1,181SQFT
-
$1,015$/SQFT
School Ratings & Info
Description
Tucked away in Provincetown's desirable West End, 3 Meadow Road, Unit 2 offers far more than meets the eye. This meticulously maintained one-bedroom townhome is full of unexpected space, smart design, and thoughtful finishes -- all set across four levels of comfortable and flexible living. In addition to the king-sized primary bedroom, this home includes a den, and a lower-level studio with its own private entrance -- perfect for a home office, gym, or creative retreat. The property also boasts three inviting outdoor areas, including a morning terrace off the kitchen, a private enclosed patio, and a spacious top-floor deck with bucolic views of nearby conservation land and a horse stable. The main living level features an open-concept layout with 9-foot, beamed ceilings and sun-drenched interiors. The living and dining areas flow seamlessly into a well-appointed kitchen with a breakfast bar, stone countertops, abundant cabinetry, and stainless-steel appliances. Upstairs, the generous primary suite includes a full bath with a whirlpool tub and an in-unit laundry. One floor above, the cozy den offers space for guests or a quiet reading nook, and access to the large rooftop deck -- the perfect spot to relax or entertain with a view. The lower level studio, accessed via a private patio stairway, features soaring ceilings and a half bath ideal for work, fitness, or art. Other highlights include: gleaming wood floors, central air conditioning, two-car tandem parking, professionally managed association, close proximity to Victor's restaurant, the beach, and town center. This is a rare opportunity to own a townhome that balances privacy, versatility, and a prime West End location. Rentals are welcome for a minimum of 90 days. We look forward to welcoming you to 3 Meadow Road, Unit 2. Seller welcomes offers with requests for buyer concessions.
Related Properties
© 2025 Cape Cod & Islands Multiple Listing Service, Inc. All rights reserved.
IDX information is provided exclusively for consumers' personal, non-commercial use and may not be used for any purpose other than to identify prospective properties consumers may be interested in purchasing. Information is deemed reliable but is not guaranteed accurate by the MLS or Rand Atlantic Cape Cod Realty.
Data last updated: 2025-11-14T00:25:22.94.